Skip to content
Community
Explore Homes
Download Booklet
Community
Explore Homes
Download Booklet
Contact Us
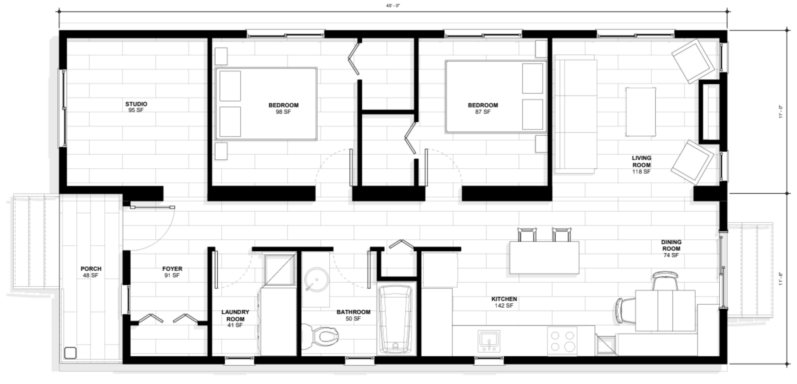
The Ardenne
24′ x 45′ @ 1,030 sqft
๐๏ธ๐๏ธ 2 Beds, ๐ 1 Bath, ๐ณ Full Kitchen, ๐ช Open Concept
Price
Available
Floor Plan
๐๏ธ๐๏ธ 2 Beds
๐ 1 Bath
๐ณ Full Kitchen
๐ช Open Concept
A Closer Look at TayHaven
Contact Us